Are you in need of a gun rack template that you can easily print at home? Look no further! With a printable gun rack template, you can organize your firearms in a safe and efficient manner.
Whether you are a gun enthusiast or just looking to keep your firearms secure, having a gun rack is essential. With a printable template, you can customize the design to fit your space and style.
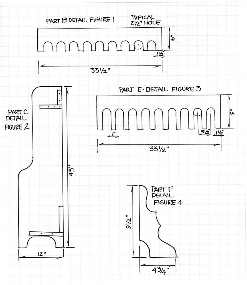
gun rack template printable
Customize Your Gun Rack with a Printable Template
Using a printable gun rack template allows you to choose the size, shape, and material of your rack. You can also add personal touches like engravings or decorations to make it unique to you.
With a printable template, you can easily follow the instructions to assemble your gun rack. No need to worry about complicated measurements or designs – simply print the template, cut out the pieces, and put it together like a puzzle.
Once you have your gun rack assembled, you can proudly display your firearms in a safe and organized manner. Not only does a gun rack keep your firearms secure, but it also adds a touch of style to your space.
So why wait? Download a gun rack template printable today and start organizing your firearms in a personalized and efficient way. Stay safe and stylish with a custom gun rack that fits your needs perfectly.
DIY Rifle Rack How to Book Digital Downloadable PDF Pattern Plan To Easily Build San Angelo Gun Wall Stand Etsy
Allen Company Wood Gun Rack With 4 Hooks Brown Indoor Use Solid Wood Construction 24 5 in X 24 5 in X 4 25 18550 At Lowes
Woodworking Plans Gun Rack How To Build An Easy DIY Woodworking Projects Wood Work
Gun Rack Plan SVG Pistol Wall Hanging Woodworking Blue Prints Holster Ammo Shelf Vector Laser Engraving CNC Cricut Glowforge Etsy Canada
Gun Rack Plans Google Search





